Documentation Index
Fetch the complete documentation index at: https://installerguides.lunarenergy.com/llms.txt
Use this file to discover all available pages before exploring further.
Clearance Requirements

| Requirement | Specification |
|---|---|
| Minimum clearance on sides | 6 in (15.2 cm) to all obstructions. Additional clearance recommended from hot air sources to avoid power limiting. |
| Minimum clearance above system | 2.5 in (15 cm) |
| Minimum wall space for installation | 36.4 in (92 cm) wide. Height depends on quantity of DC ESS units. |
| Maximum height above ground/floor to bottom of ESS for rotary switch on inverter (RSID) to be 6’7” from grade | L2-ESS-10kWh: 50.4 in (128 cm) L2-ESS-15kWh: 39.7 in (101 cm) L2-ESS-20kWh: 29.1 in (74 cm) L2-ESS-20kWh+(1) LE-DC-UNIT: 18.5 in (47 cm) L2-ESS-20kWh+(2) LE-DC-UNIT: 7.8 in (20 cm) |
| Maximum height above ground/floor to bottom of ESS where external RSID is field installed less than 6’7” from grade | No limit |
| Minimum clearance in front of battery | Abide by local code |
| Minimum clearance to doors and windows directly entering the dwelling unit (N/A to attached or detached garages) | Abide by local code |
| Minimum room size for indoor installation | 283 cu ft. (8.01 m3) |
Distance between Components
| Connection | Max Distance | Wire Gauge |
|---|---|---|
| Inverter to Maximizer Hub | 200 ft (61 m) | 12 AWG – 4 AWG |
| Inverter to Bridge (AC) | 95 ft (29.5 m) | 8 AWG – 4 AWG |
| Inverter to Bridge or MSA Controller (Comms) | 95 ft (29.5 m) | Cat5e, Cat6, Cat6a, or 14–22 AWG (shielded, twisted or untwisted) |
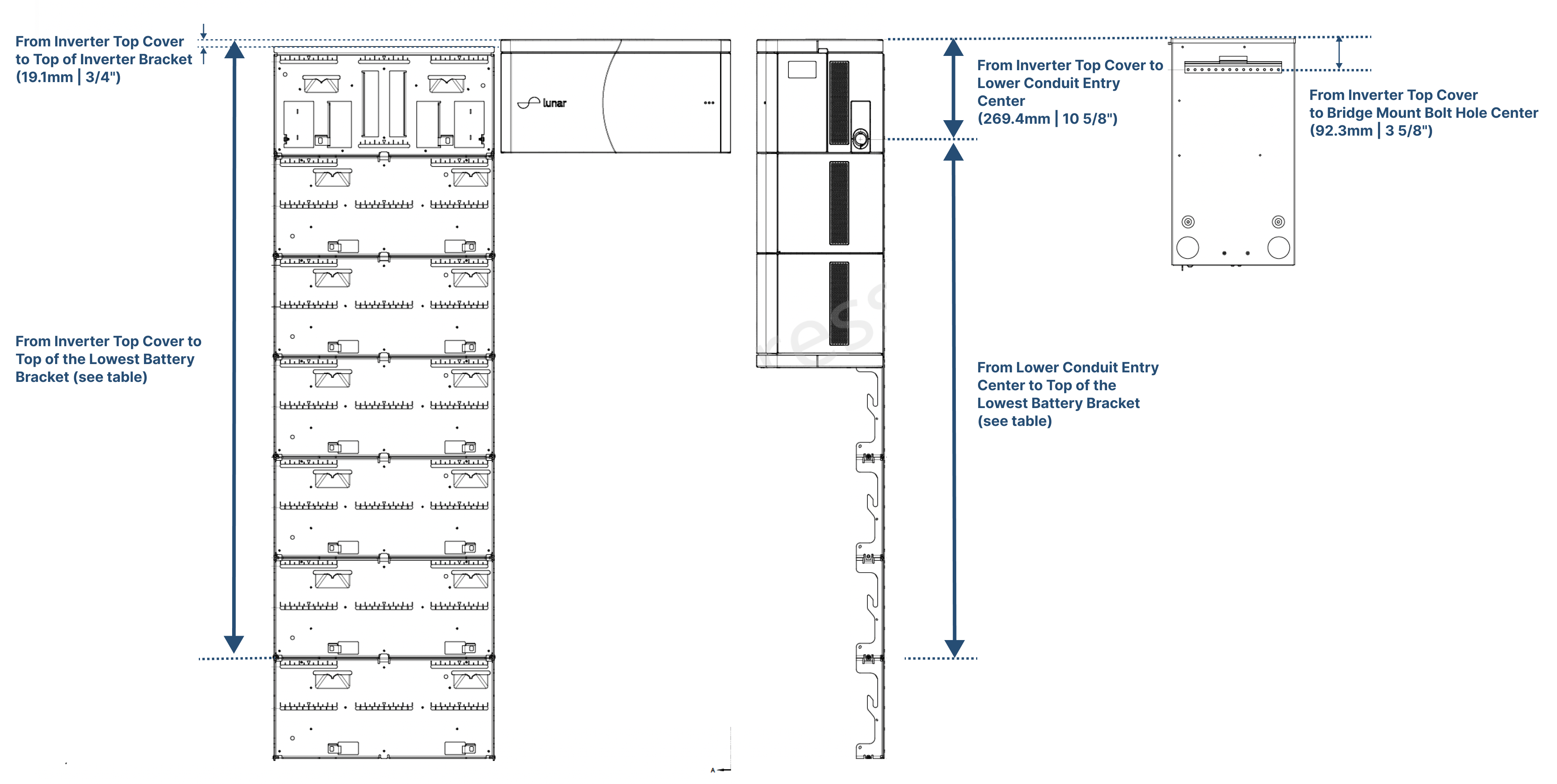
Top Alignment
Use the following measurements to align the ESS, Lunar Bridge, and conduits from the top of the inverter cover.
| Measurement | Value |
|---|---|
| From Inverter Top Cover to Top of Inverter Bracket | 19 mm (3/4”) |
| From Inverter Top Cover to Lower Conduit Entry Center | 269 mm (10 5/8”) |
| From Inverter Top Cover to Bridge Mount Bolt Hole Center | 92 mm (3 5/8”) |
| Configuration | From Inverter Top Cover to Top of Lowest Battery Bracket | From Inverter Lower Conduit Entry Center to Top of Lowest Battery Bracket |
|---|---|---|
| 10 kWh | 586 mm (23 1/8”) | 316 mm (12 1/2”) |
| 15 kWh | 857 mm (33 3/4”) | 587 mm (23 1/8”) |
| 20 kWh | 1128 mm (44 3/8”) | 858 mm (33 3/4”) |
| 25 kWh | 1399 mm (55 1/8”) | 1129 mm (44 1/2”) |
| 30 kWh | 1670 mm (65 3/4”) | 1400 mm (55 1/8”) |